物件紹介
- HOME
- 物件紹介
当社の取扱物件を紹介しています。気になる物件がございましたらお気軽にお問い合わせください。
各物件の申込書はこちらからダウンロードしてください。
【駐車場/22,000円】M&D駐車場
| 賃料 | 22,000円 |
|---|---|
| 管理費など | なし |
| 敷金 | なし |
| 礼金 | なし |
| 交通 | JR京浜東北線 川崎駅 バス12分停歩3分 |
| 所在地 | 川崎市川崎区台町6-23 |
| 築年月 | – |
| 専有面積 | – |
| 間取り | – |
| その他 | ★2号駐車場に空き有 ★月極駐車場 ★契約1年未満のかたは条件が変わる場合がありますので、お問い合わせください。 ★保証会社加入要 |
【1K/65,000円】サンハイツユタカ 306号室
| 賃料 | 65,000円 |
|---|---|
| 管理費など | なし |
| 敷金 | 1ヶ月 |
| 礼金 | 1ヶ月 |
| 交通 |
JR南部線 矢向駅 徒歩15分 |
| 所在地 | 横浜市鶴見区江ヶ崎町22-2 |
| 築年月 | 1991年4月 |
| 専有面積 | 21.60m2 |
| 間取り | 1K |
| その他 |
★キッチン新品!★浴室リニューアル♪ |
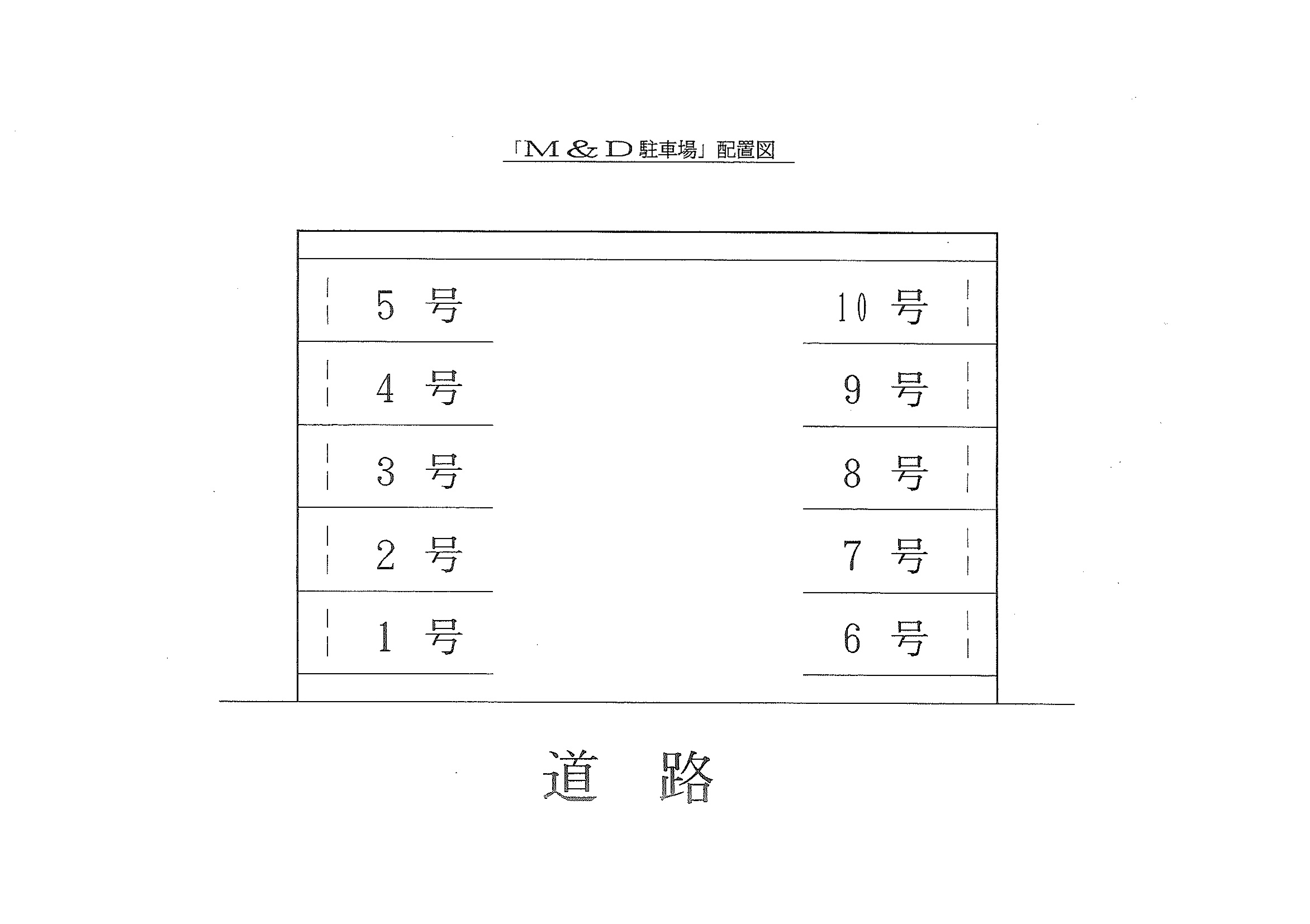
【駐車場/13,200円】東方ハマハイツ駐車場
| 賃料 | 13,200円 |
|---|---|
| 共益費 | なし |
| 敷金 | 1ヶ月 |
| 礼金 | 1ヶ月 |
| 交通 | 横浜市ブルーライン 仲町台駅徒歩13分 |
| 所在地 | 横浜市都筑区東方町1023-2 |
| 築年月 | – |
| 専有面積 | – |
| 間取り | – |
| その他 |
★2025年12月1日より2台空きあり ★1号と2号が空きあり |
【3K/92,000円】コーポM&Y 101号室
| 賃料 | 92,000円 |
|---|---|
| 共益費 | 3,000円 |
| 敷金 | 1ヶ月 |
| 礼金 | 1ヶ月 |
| 交通 | JR川崎駅 バス12分 停歩5分 |
| 所在地 |
川崎市川崎区四谷上町 |
| 築年月 | 1993年10月 |
| 専有面積 | 47.37㎡ |
| 間取り | 3K |
| その他 |
☆宅配ボックス有 ☆エアコン2台設置 ☆モニタ付きインターホン有、温水洗浄便座付トイレ等 |
【駐車場/22,000円】M&S駐車場
| 賃料 | 22,000円 |
|---|---|
| 管理費など | なし |
| 敷金 | なし |
| 礼金 | なし |
| 交通 | JR川崎駅 バス15分 停歩2分 |
| 所在地 | 川崎市川崎区塩浜2-9-8 |
| 築年数 | – |
| 間取り | – |
| 現況 |
2026年1月1日から空き予定 |
| その他 |
2号駐車場、保証会社加入要 |
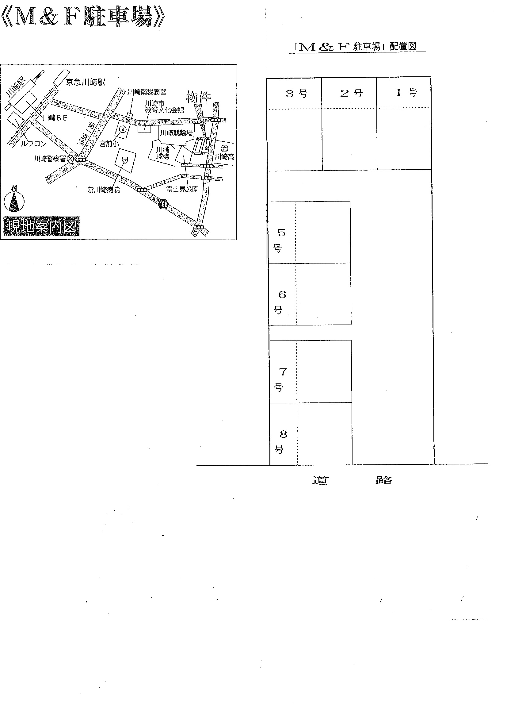
【駐車場/19,800円】M&F駐車場
| 賃料 | 19,800円 |
|---|---|
| 共益費 | なし |
| 敷金 | なし |
| 礼金 | なし |
| 交通 |
JR川崎駅 バス5分 停歩1分 |
| 所在地 | 川崎市川崎区富士見2-4-4 |
| 築年数 | – |
| 間取り | – |
| 専有面積 | – |
| その他 |
2026年1月より1号空き予定、保証会社加入要 |
Coming soon!
| 賃料 | |
|---|---|
| 共益費 | |
| 敷金 | |
| 礼金 | |
| 交通 |
|
| 所在地 | |
| 築年数 | |
| 間取り | |
| 専有面積 | |
| その他 |
|
申込書
| 賃貸入居申込書 | 【入居申込書必要書類について】 ・入居申込書(個人) ・入居申込書(法人) ・連帯保証人承諾書 【駐車場申込必要書類について】 ・駐車場申込書(個人) ・駐車場申込書(法人) |
|---|---|
| 保証委託申込書 (保証会社利用) |
【新日本信用保証】 ・申込書(個人)/申込書記入例(個人) ・申込書(法人)/申込書記入例(法人) 【日本セーフティー】 ・申込書(個人) ・申込書(法人) |
お問い合わせ
当社は、神奈川県川崎市を中心に隣接市および神奈川県内を商圏とした物件の仲介、分譲、賃貸、管理などを行っています。
新しい住まいをお探しの際は、どうぞお気軽に当社へご相談ください。
TEL:044-245-4831
営業時間:9:00~17:30
定休日:土曜日、日曜日、祝日




